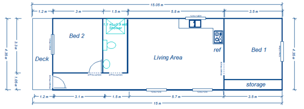
Accommodation for 2 to 4 people with 2 separate bedrooms, bathroom, kitchenette and deck.
Dimensions: 15.05m x 4.35m
Total Area: 65.46 sqm
Contact Hassall Free Homes for prices on delivery, stumping, council, approvals, decks, stairs and ramps
 
		
		 
    Accommodation for 2 to 4 people with 2 separate bedrooms, bathroom, kitchenette and deck.
Dimensions: 15.05m x 4.35m
Total Area: 65.46 sqm
Contact Hassall Free Homes for prices on delivery, stumping, council, approvals, decks, stairs and ramps

Dimensions
Length: 15.05m
Width: 4.35m
Total: 65.46 sqm
Illustrations are for guidance only. Stairs and ramps are not included in price.