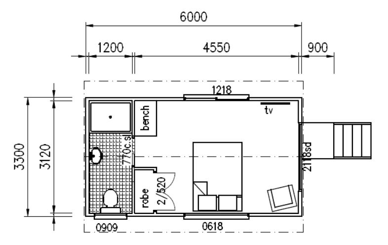
Loft style accommodation for one or two people with a WC and shower.
Dimensions: 6m x 3.3m
Total area: 19.8sqm
Contact Hassall Free Homes for prices on delivery, stumping, council, approvals, decks, stairs and ramps
 
		
		 
    Loft style accommodation for one or two people with a WC and shower.
Dimensions: 6m x 3.3m
Total area: 19.8sqm
Contact Hassall Free Homes for prices on delivery, stumping, council, approvals, decks, stairs and ramps

Dimensions
Length: 6m
Width: 3.3m
Total: 19.8 sqm
Illustrations are for guidance only. Stairs and ramps are not included in price.