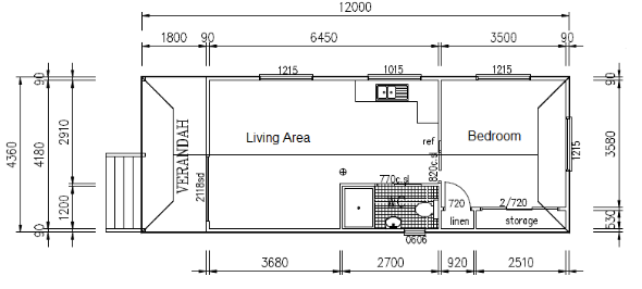
Accommodation unit for 1 or 2 people comprising of spacious kitchen, living, bedroom, ensuite and veranda.
Dimensions: 12m x 4.36m
Total Living Area: 44.47sqm
Total Area: 52.32 sqm
Contact Hassall Free Homes for prices on delivery, stumping, council, approvals, decks, stairs and ramps.
 
		
		
 
         
    
