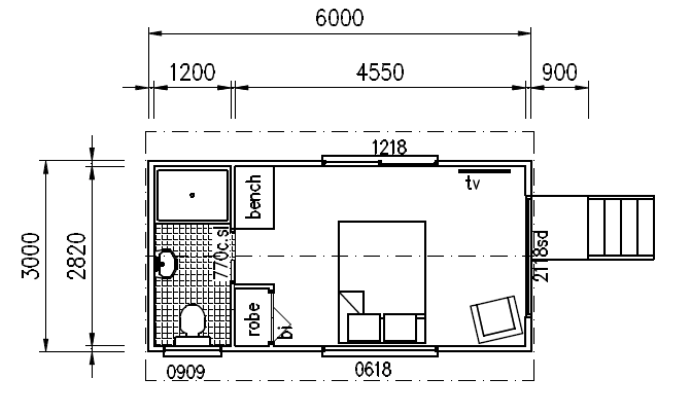
Loft style accommodation for one or two people with a WC and shower.
Dimensions: 6m x 3m
Total Area: 18sqm
Contact Hassall Free Homes for prices on delivery, stumping, council, approvals, decks, stairs and ramps.
 
		
		 
    Loft style accommodation for one or two people with a WC and shower.
Dimensions: 6m x 3m
Total Area: 18sqm
Contact Hassall Free Homes for prices on delivery, stumping, council, approvals, decks, stairs and ramps.

Dimensions
Length: 6m
Width: 3m
Total: 18 sqm
Illustrations are for guidance only. Stairs and ramps are not included in price.